O MNĚ
PORTFOLIO
DÁRKOVÝ POUKAZ
KONTAKT
HEZKÝ DESIGN
O MNĚ
PORTFOLIO
DÁRKOVÝ POUKAZ
KONTAKT

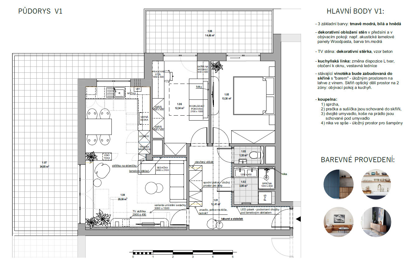
Návrh interiéru bytu 3+KK

↑Back to Top
Powered by Adobe Portfolio